Le hameau de parc zalé

40 rue parc Zalé
29710 Plogastel-Saint-Germain

Résidence d'habitation
Livraison : 1er trimestre 2026
Etat : Livraison immédiate

TERRAIN à partir de 39 000 €
Immobilier neuf Polimmo

Présentation du programme

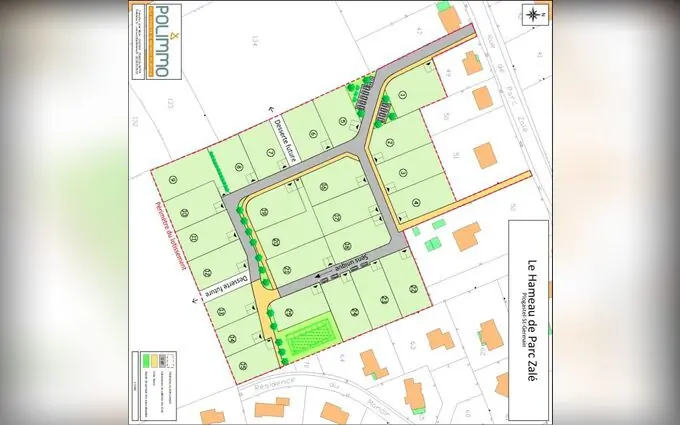
PLOGASTEL SAINT-GERMAIN, COMMUNE RURALE ET DYNAMIQUE ENGAGEE POUR UN DEVELOPPEMENT DURABLE LOCAL À 20 MINUTES DE QUIMPER ET 15 MINUTES DES PLAGES Avec une situation géographique centrale privilégiée : à 20 minutes de Quimper et 15 minutes des plages sauvages de la Baie d’Audierne, Plogastel Saint-Germain, tournée vers la jeunesse et impliquée auprès des anciennes générations, est une commune rurale en pleine évolution où il fait bon vivre, déterminée à poursuivre son développement de façon harmonieuse et équilibrée pour un développement durable. Ce nouveau lotissement est composé de 25 terrains viabilisés et libres de constructeur de 305 à 548 m² à partir de 34.000 € (hors frais de notaire).

Les informations sur les risques auxquels ce bien est exposé sont disponibles sur le site Géorisques : "www.georisques.gouv.fr".

Points d'intérêt autour de ce bien immobilier à Plogastel-Saint-Germain

Dans un rayon de 1,5 km

  • 1 Bureau(x) de poste
  • 1 Pharmacie(s)
  • 1 Médecin(s) généraliste
  • 2 Ecole(s) primaire

Demande d'informations

En remplissant ce formulaire, j'accepte de recevoir plus d'informations de la part d'un professionnel de l'immobilier.

En savoir plus sur la protection des données personnelles

Logements neufs proposés :

Surface Prix (€) Étage Ext. Expo. Docs Les + Contacter
444 m² 39 000 € Rez-de-jardin
Jardin (444 m²)
NC

Télécharger le plan

NC

452 m² 40 000 € Rez-de-jardin
Jardin (452 m²)
NC

Télécharger le plan

NC

443 m² 47 000 € Rez-de-jardin
Jardin (443 m²)
NC

Télécharger le plan

NC

452 m² 51 000 € Rez-de-jardin
Jardin (452 m²)
NC

Télécharger le plan

NC

522 m² 52 000 € Rez-de-jardin
Jardin (522 m²)
NC

Télécharger le plan

NC

472 m² 52 000 € Rez-de-jardin
Jardin (472 m²)
NC

Télécharger le plan

NC

490 m² 53 000 € Rez-de-jardin
Jardin (490 m²)
NC

Télécharger le plan

NC

490 m² 54 000 € Rez-de-jardin
Jardin (490 m²)
NC

Télécharger le plan

NC

548 m² 54 000 € Rez-de-jardin
Jardin (548 m²)
NC

Télécharger le plan

NC

531 m² 54 000 € Rez-de-jardin
Jardin (531 m²)
NC

Télécharger le plan

NC

498 m² 55 000 € Rez-de-jardin
Jardin (498 m²)
NC

Télécharger le plan

NC

Découvrez nos programmes immobiliers neufs à proximité de Plogastel-Saint-Germain

Programme immobilier neuf Iroiz à Crozon (29160)
Iroiz

Crozon (29160)

Programme immobilier neuf Les jardins de musset à Fondettes (37230)
Les jardins de musset

Fondettes (37230)

Programme immobilier neuf Confluence à Quimper (29000)
Confluence

Quimper (29000)

Programme immobilier neuf Hestia à Briec (29510)
Hestia

Briec (29510)

Programme immobilier neuf Quimper à moins de 30 min en voiture de la plage de bénodet à Quimper (29000)
Programme immobilier neuf Hameau de kerjean à Moëlan-sur-Mer (29350)
Hameau de kerjean

Moëlan-sur-Mer (29350)

Programme immobilier neuf Crozon maisons à 5 min à vélo de la plage du porzic à Crozon (29160)
Programme immobilier neuf Fondettes à 15 min du centre de tours à Fondettes (37230)
Programme immobilier neuf Fondettes en coeur de ville à Fondettes (37230)
Programme immobilier neuf Concarneau maisons neuves quartier verdoyant menires à Concarneau (29900)
Programme immobilier neuf Plougastel-daoulas à 15 min en voiture de brest à Plougastel-Daoulas (29470)
Programme immobilier neuf Trégun à proximité du centre-bourg à Trégunc (29910)
Programme immobilier neuf Quimperlé coeur de ville à 20 min en voiture de l'océan à Quimperlé (29300)
Programme immobilier neuf Coteaux de cuzon à Quimper (29000)
Coteaux de cuzon

Quimper (29000)

Programme immobilier neuf Iroiz 2 à Crozon (29160)
Iroiz 2

Crozon (29160)

Continuer sans accepter →

Ce site web utilise des cookies.

Les cookies nous permettent de personnaliser le contenu et les annonces, d'offrir des fonctionnalités relatives aux médias sociaux et d'analyser notre trafic. Nous partageons également des informations sur l'utilisation de notre site avec nos partenaires d'analyse, qui peuvent combiner celles-ci avec d'autres informations que vous leur avez fournies.

En cliquant sur “Tout Accepter”, vous acceptez l'utilisation de cookies à des fins publicitaires et ceux servant à mesurer l'audience.

En cliquant sur “Essentiels uniquement”, vous acceptez l'utilisation de cookies servant à mesurer l'audience uniquement.